Announcements
Welcome to the Revit Ideas Board! Before posting, please read the helpful tips here. Thank you for your Ideas!
cancel
Showing results for 
Show  only  | Search instead for 
Did you mean: 

Automate and Integrate Matchline, Scopebox, Hatch altogether with dependentview

Automate and Integrate Matchline, Scopebox, Hatch altogether with dependentview

 

The process of making plan-drawing-sets for large buildings is very manual and fragmented in different tools. You have first to create matchline for the different plan parts. Then comes the scopeboxes. Then you create dependent plan views and assign scopeboxes to part-plans respectively. Then you must add hatch to matchline at the part-plan edges. Then comes the view reference tags to show the next drawings number. Then you must put these part-plans view in sheets to get your drawing-set ready.

 

A more integrated process is to have a kind of integration between those tools. Scopeboxes and matchline would have the ability to be attached/integrated to each other and be able to snap/offset from each other. Hatch on the sides of matchline would be integrated in the matchline creating process. These hatches are subcategory of matchline and show and hide automatically in the respective part-plan view (in the same manner as the “view reference” tags do). Dependent views creation would be integrated with scopeboxes/matchline. There would be an option to create dependent views according to/out of scope boxes. Sheets would have the option to create multiple sheets in accordance to dependentviews (by selecting the parent view/s, then an equal number of sheets would be created respectively with dependent views, each dependent view is set in a sheet).

 

This is a more automated, integrated, smart, and contemporary way to create different plan-drawing-sets.

 

8 Comments
Anonymous
Not applicable

Yes! Think this is about the same thing. Thank you for your idea and your clear explanation. You have my support!

 

For the administrator: if this is about the same thing, maybe it's possible to merge the iedeas and make a topic of it? 

 

https://forums.autodesk.com/t5/revit-ideas/making-it-possible-to-shape-scopeboxes-with-drawing-funct...

lionel.kai
Advisor

When you mention "Hatch on the sides of matchline would be integrated in the matchline creating process." are you talking about the little circles that are half-filled on the side being shown? Those symbols can be included in the View Reference, by the way - which also makes it easier since only the appropriate side (to match the reference) will be shown - if you have a simple single line (otherwise, we use Annotation Symbols). Generally using a Filled Region repeatedly like that is bad Revit practice.

 

And once you setup one level, you can use "Apply Dependent Views..." to setup all the others. I'm not sure if Scope Boxes are one of the things that are copied (since we don't use them), but View References and Crop Regions (we often have non-rectangular crops) are duplicated to selected plan views. It doesn't do the naming properly, though, so be sure to create your first dependent views in the right order (since that's how all the others will be numbered). And, of course, Annotation Symbols (if needed) aren't handled properly either.

 

Related ideas:

tariqallaham
Enthusiast

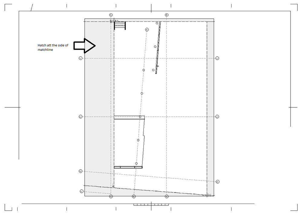
Look at the attached image. The hatch at the side of Matchline is the one that hatches out the area between the matchline and the view crop region. It is used to define that the hatched area/region is not a part of this drawing. instead, it is included in another drawing.Sheet-1.png

Anonymous
Not applicable

Ok, reading it again and seeing the image it's not really the same thing we are talking about. My post is purely about being able to shape the Scope Boxes to fit sizes. Now it's only possible to make it cube-shaped. I would like to be able to create Scope Boxes that exactly have the same shape as the building itself, or parts of buildings. For example a round Scope Box, or a triangular shaped one. A Scope Box created by a pick line function for example and then pick the walls or grids to shape the surface of the Scope Box.

lionel.kai
Advisor

@tariqallaham OH. Now I understand. We don't do masking like that (we show info on both sides, but sometimes hide callouts on the "outside"), but that does make it very clear what's covered by the view.

tariqallaham
Enthusiast

@Anonymous 

I agree with you on the need for a more practical and usable scopebox tool. I support your idea. Mine is about more integration between the tools and a smoother automated process. Both ideas are needed and both complete each other.

tariqallaham
Enthusiast

I would also like to add an additional integration; It is the Key plan figure and the key section figure in drawing sheets.

  1. The key plan figure is generated automatically from the model. It should be able to be put on multiple sheets, (like a Legend view, but legend view can’t have variation now!)
  2. Revit will hatch the correspondent area on the key plan figure according to the Scope box of the plan part view that is on the sheet.
  3. Revit will hatch the correspondent level on the key section figure according to the level of the plan part view that is on the sheet.

Just more integration and automation in our work process, minimizing tedious repetitive work that leads only to time waste and mistakes.

tariqallaham
Enthusiast

Can't find what you're looking for? Ask the community or share your knowledge.

Submit Idea