4k Monitor 2D Drawing rendering failure on Windows Maximise Screen

4k Monitor 2D Drawing rendering failure on Windows Maximise Screen

jamie7MCF6
Observer Observer
243 Views
1 Reply
Message 1 of 2

4k Monitor 2D Drawing rendering failure on Windows Maximise Screen

jamie7MCF6
Observer
Observer

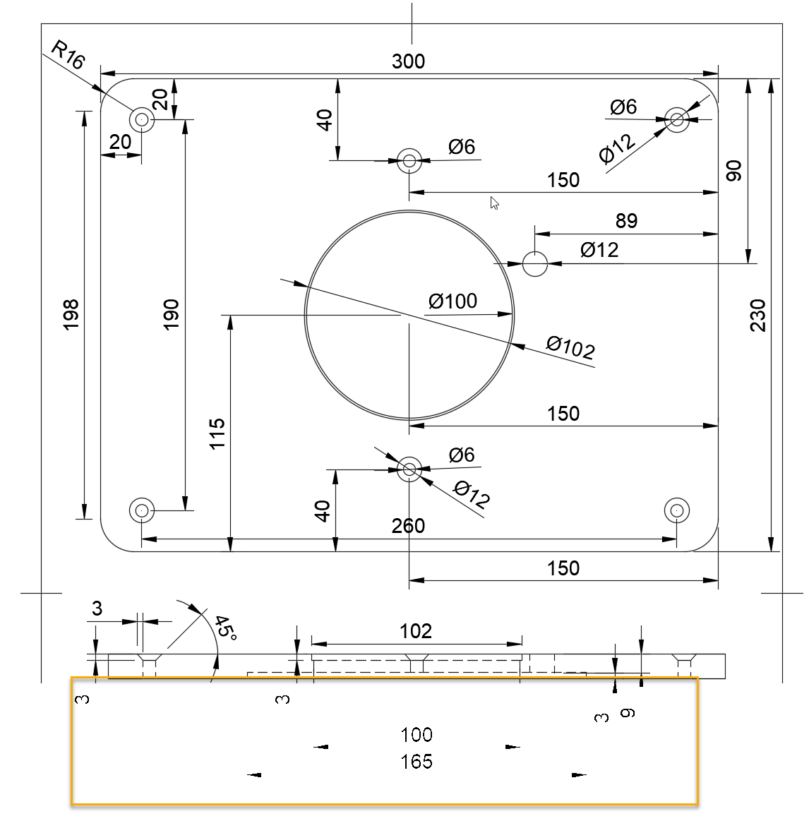
If you create a Drawing from a Design and have your Fusion 360 window maximized on a 4K monitor it will fail to render the bottom half of an A4 Page. This causes dimensions to be lost on the screen.  As soon as you reduce the screen to below the maximum resolution the dimension display.

 

Windows 10.0.19045

Monitor: Dell S2721Q

Display Driver: Intel HD Graphic 520

  

0 Likes
244 Views
1 Reply
Reply (1)
Message 2 of 2

MAS.DPL
Advocate
Advocate

I find just reducing the size of the fusion window fixes this 4K monitor/Windows/drawing issue. Try it at about 80% full screen. 

0 Likes