Modeling Help

Modeling Help

barkster
Enthusiast Enthusiast
530 Views
13 Replies
Message 1 of 14

Modeling Help

barkster
Enthusiast
Enthusiast

I'm trying to make a clamp for a pipe and I never do a lot of sweeping and lofting and can't really figure out how to do this.  Can anyone give me some suggestions on how to go about this?  Thanks

Screenshot 2025-05-14 135140.jpg

0 Likes
531 Views
13 Replies
Replies (13)
Message 2 of 14

Drewpan
Advisor
Advisor

Hi,

 

So I am not really sure what it is you are trying to achieve. Why do you need to loft or

sweep? You pretty much have what you need to clamp a pipe as clamping suggests that

you want to secure the pipe to a wall or something. That is unless you want to encapsulate

the pipe as suggested by this picture.

 

Drewpan_0-1747272257448.png

 

Have you a model for the pipe you want to clamp? One method could be as simple as creating

a surface around the pipe, thickening the surface to create a body and model bolt tags.

 

Drewpan_1-1747272472244.png

 

Drewpan_2-1747272537289.png

 

Drewpan_3-1747272611181.png

 

Drewpan_4-1747272660480.png

 

Drewpan_5-1747272713170.png

 

Drewpan_6-1747273113646.png

 

Drewpan_7-1747273181721.png

 

Drewpan_8-1747273211734.png

 

Drewpan_9-1747273256737.png

 

Drewpan_10-1747273286723.png

 

Drewpan_11-1747273350775.png

 

Drewpan_12-1747273404732.png

 

Drewpan_17-1747273742260.png

 

Drewpan_18-1747273777264.png

 

Drewpan_19-1747273797980.png

 

Drewpan_21-1747274082205.png

 

 

Drewpan_20-1747274043086.png

 

Drewpan_22-1747274125680.png

 

No lofts or sweeps required.

 

Is this what you wanted?

 

Cheers

 

Andrew

 

 

0 Likes
Message 3 of 14

davebYYPCU
Consultant
Consultant

Depends on how much license is available.

Plain Loft can be prettied up with fillets and or other tools.

Extracted the base plate of the lower body, and the fillet curves of the top body, Loft with direction to get started.

 

hmldb.PNG

Might help...

0 Likes
Message 4 of 14

barkster
Enthusiast
Enthusiast

No sorry, I'm trying to connect between the two.

0 Likes
Message 5 of 14

TheCADWhisperer
Consultant
Consultant

@barkster 

Why is your Sweep sketch not symmetrical?

TheCADWhisperer_0-1747316231716.png

TheCADWhisperer_0-1747319556334.png

 

 

 

0 Likes
Message 6 of 14

barkster
Enthusiast
Enthusiast

thanks for reply, that's what i'm shooting for but just trying to get more control over the shape,  I've tried adding rails but never likes it and looks horrible when I can get it to work.  I think I'm going about this completely wrong.  

 

Screenshot 2025-05-15 091915.jpgScreenshot 2025-05-15 092229.jpgScreenshot 2025-05-15 092322.jpg

0 Likes
Message 7 of 14

davebYYPCU
Consultant
Consultant

Fusion can do miracles, but you will need more preparation.  Your position offsets maybe too tight for lofting, you may need to consider two Extrudes.  First for a large lump, second as Intersect, for trimming.


When you built that Loft attempt, did it fail with just one (centre line) rail?, 

I would need 4 rails to tidy my attempt to be more curved with flow.  You don’t have adequate control with just 2 rails.

 

Now that you want more material under the curved bar, profiles would need to be adjusted / developed.

I would also be tempted to remove the channel from both bodies, and rebuild those later, once the solid blob is how you need it.

 

I recommend doing half and then Mirror because it is likely symmetric.

Will be a day or so before I can update my attempt.

 

Might help…

 

0 Likes
Message 8 of 14

barkster
Enthusiast
Enthusiast

Yeah that's what I'm after I think but I'm not understanding something about sweeping.  I rarely do it when I'm modeling and I think I'm over thinking again.  Please provide model so I can see how you did it.  Thanks

0 Likes
Message 9 of 14

TheCADWhisperer
Consultant
Consultant

@barkster 

We will have to start over from scratch.

Are you ready to begin now?

0 Likes
Message 10 of 14

barkster
Enthusiast
Enthusiast

Yikes, sure.  I've never know how to dimension a spline like that, now I do... I'm sure there are tons of things I did wrong. 

0 Likes
Message 11 of 14

TrippyLighting
Consultant
Consultant

Some of the fillets look do not visually attractive. I find the one on the left is more attractive than the one on the right. 

 

TrippyLighting_0-1747329331000.png

 

This is very easy to achieve.

1st apply a small fillet to the top edge of the tab:

TrippyLighting_1-1747329392888.png

 

Then apply the corner fillet, but also change it from Constant to Chord Length:

TrippyLighting_2-1747329512350.png

 

 


EESignature

0 Likes
Message 12 of 14

barkster
Enthusiast
Enthusiast

Thanks for the tip, I rarely change any of the settings.  I need to start looking at the other options when I have a tool up.  After fixing those fillets my mirrors are failing even after reselecting the features. Ugh..

0 Likes
Message 13 of 14

barkster
Enthusiast
Enthusiast

after playing around some more, I got it kinda like I want at least to represent what I want, some of the faces are jacked where it meets the bottom clamp but my best attempt so far

Screenshot 2025-05-15 132022.jpg

Message 14 of 14

TheCADWhisperer
Consultant
Consultant

@barkster wrote:

 I'm sure there are tons of things I did wrong. 


@barkster 

We will start out slow with "baby steps" until I am sure techniques are understood and then we will pick up speed.

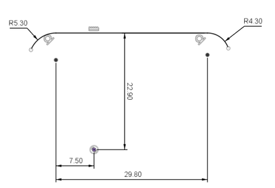
Start a new file.

Start a new sketch on the Front plane and sketch the horizontal line and two tangent arcs as shown below...

 

TheCADWhisperer_0-1747333864335.png

 

0 Likes