Generic model line based array family

Generic model line based array family

CHRIS.rowson7HLS7
Explorer Explorer
1,857 Views
3 Replies
Message 1 of 4

Generic model line based array family

CHRIS.rowson7HLS7
Explorer
Explorer

Hi Folks

Ive almost finished a Generic model line based array family.  Im using 'no of bays' as the array integer.

 

When I stretch the line in plan view, I can successfully create multiple arrays based on the length of the line.

The problem is when array = 1 the family can't create 1 array (bay)

 

Ive created a formula from what ive learnt but its not working.

The family contains components & geometry assigned to the array, 2+ parameter, and a separate component for when array = 1.

 

Anyone out there know a way to show 1 array when = 1?  

0 Likes
1,858 Views
3 Replies
Replies (3)
Message 2 of 4

Ilic.Andrej
Advisor
Advisor

Since you created "array=1", "array=2+" visibility parameters and "bays array" integer with a formula "if(No of bays=1,2,No of bays), the family should be working.... I suggest you send us the family so that we can see what  causes the problem.



Andrej Ilić

phonetical: ændreɪ ilich
MSc Arch

Autodesk Expert Elite Alumni

0 Likes
Message 3 of 4

barthbradley
Consultant
Consultant

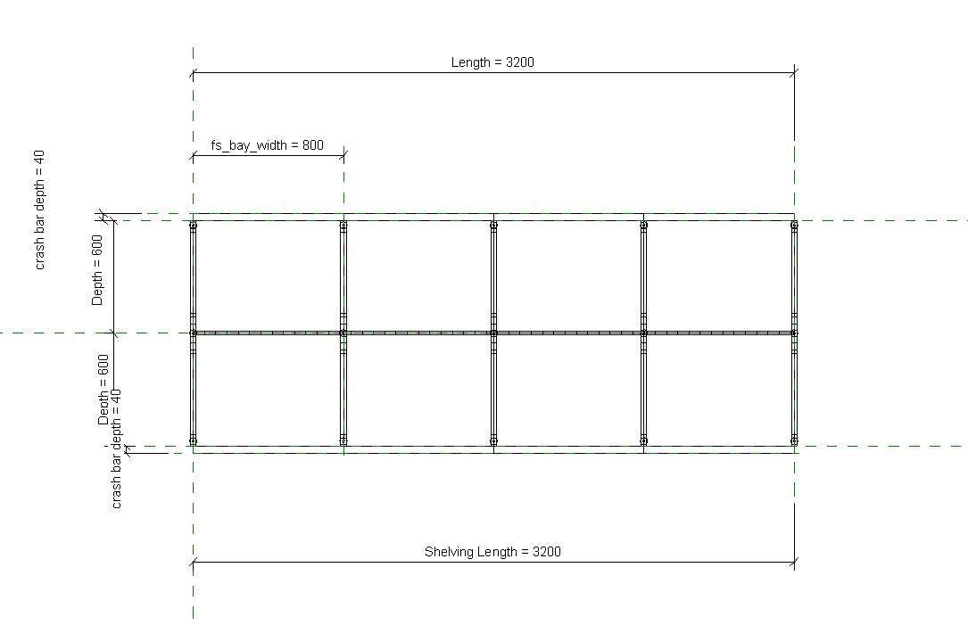
Here a family I did for another member earlier this week, that shows how to build an Array family to work with only one instance.  

 

 

 

 

0 Likes
Message 4 of 4

barthbradley
Consultant
Consultant

Wrong iteration posted above. Right one attached here.

0 Likes