Revit Architecture Forum
Welcome to Autodesk’s Revit Architecture Forums. Share your knowledge, ask questions, and explore popular Revit Architecture topics.
abbrechen
Suchergebnisse werden angezeigt für 
Anzeigen  nur  | Stattdessen suchen nach 
Meintest du: 

Crop view

5 ANTWORTEN 5
GELÖST
Antworten
Nachricht 1 von 6
Anonymous
2532 Aufrufe, 5 Antworten

Crop view

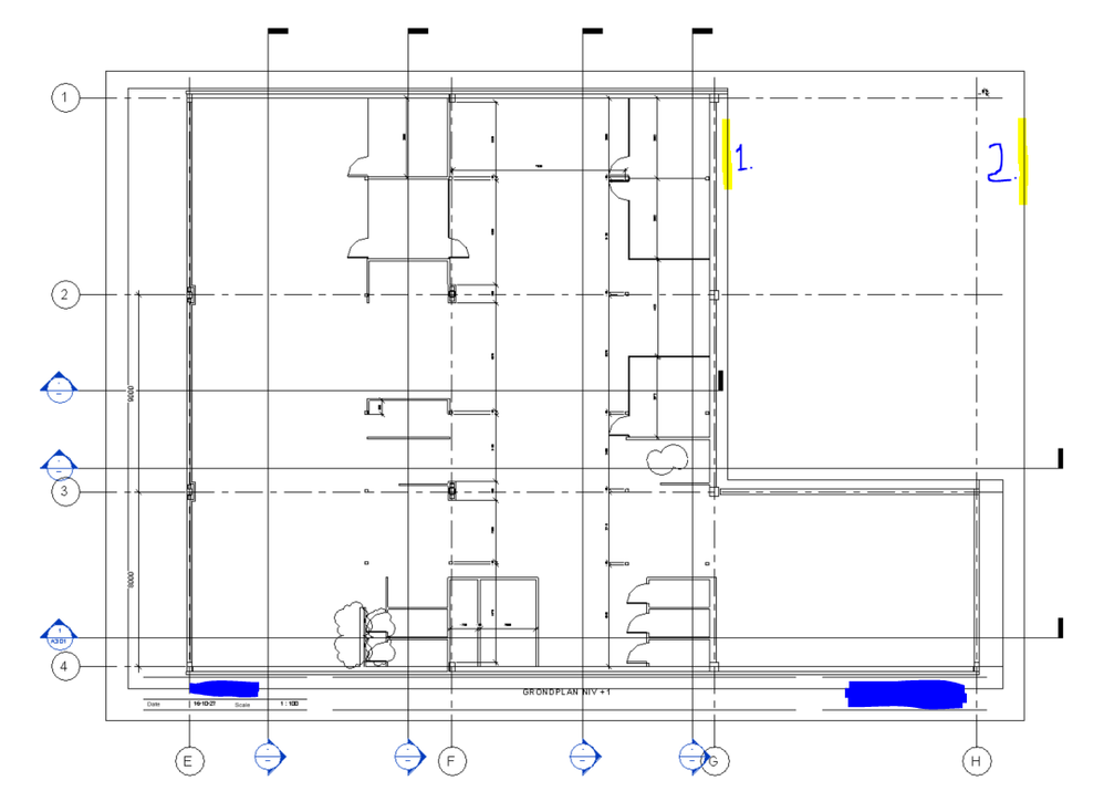
Hi all,

 

I have some problems with my grids and section lines. My crop view cuts out information like walls but the grids and section lines ignore the crop view.

 

Below I posted a print screen (I wiped out the logo and project name) marked the crop view by the number 1. and marked the paper size with a number 2.. It is a model made in Revit LT 2017.

 

Can somebody tell me how I could hide the grid and section lines that stick out of my crop view?


Thanks in advance.

 

 Revit problem.PNG

 

 

5 ANTWORTEN 5
Nachricht 2 von 6
Anonymous
als Antwort auf: Anonymous

for grid bubbles just right click and hide element. This will only affect this particular view. 

 

For the sections click on the section and drag the section line edge to where you want it to end. again as long as you don't change the extent of the section line box the line should only change in this view. 

Nachricht 3 von 6
Anonymous
als Antwort auf: Anonymous

Thanks, that helps a bit.

 

Do you also know how I can hide the part of the grid lines in the right top corner which sticks out of my crop and annotation view?

Same for the lines in my stamp below.

Nachricht 4 von 6
semko_dm
als Antwort auf: Anonymous

Hi!

 

For grids you can use two checkboxes like on a screen capture below. Another way to manipulate grids and levels is scope box.
But for section lines - just drag the end point as you want to..

 

If my post answers your question, please click the "Accept as Solution" button. This helps everyone find answers more quickly!

Kind regards,
Dmitriy Semko.

 

Безымянный.jpg

 

 



Dmitriy Semko
BIM-Manager
Blog
Facebook | Telegram | LinkedIn

Nachricht 5 von 6
Anonymous
als Antwort auf: semko_dm

Awesome, the scope box is the answer. Thanks!

Nachricht 6 von 6
Anonymous
als Antwort auf: Anonymous

same principal as the section lines - click on grid and you get a dot under the gridbubble and pull this down to bring the bubbles down into the sheet. 

Sie finden nicht, was Sie suchen? Fragen Sie die Community oder teilen Sie Ihr Wissen mit anderen.

In Foren veröffentlichen  

Autodesk Design & Make Report